Fennia Block: Halonen
Vuorikatu 14 Premises: Kluuvi, Vuorikatu 14, 00100 Helsinki
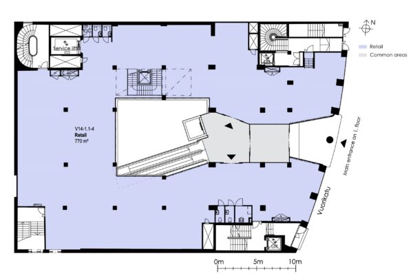
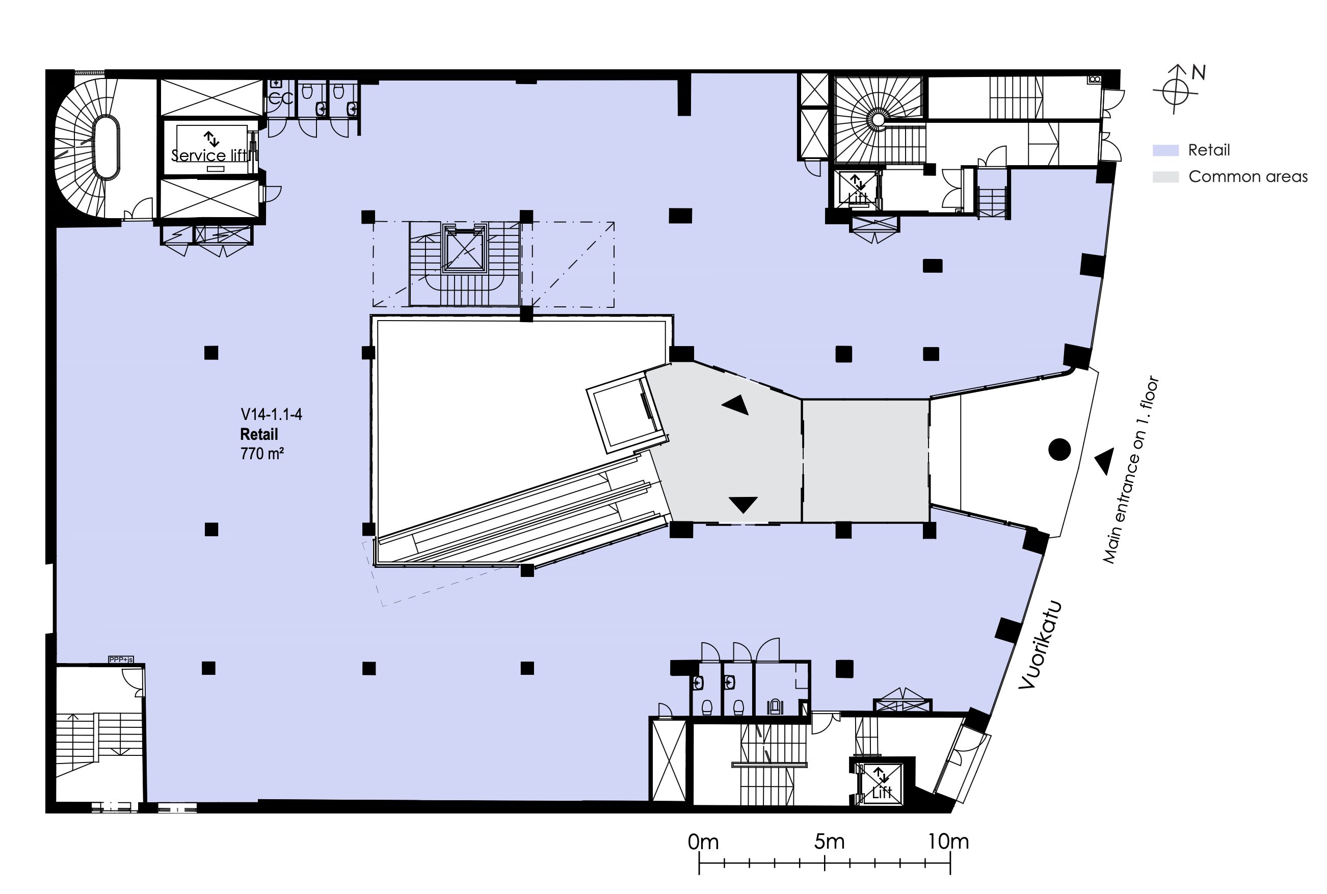
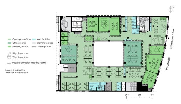
Thanks to the central location, all the commercial and business services of the city centre are within a short walking distance and the customer volumes are high. The building, erected in 1927, was thoroughly renovated in the early 2000s to serve as a modern office and retail property. The five uppermost floors house renovated office space, and the street level has retail space for rent. The premises can be easily modified according to specific needs. There are a number of restaurants at the street level. The property is ideal for a company that values good public transport connections and a wide variety of services in the city centre.
All properties in the Fennia Block have been awarded a BREEAM In-Use Excellent -level certification and they operate on 100% emission-free energy such as wind power and renewable district heating.
Property details
Accessibility
The Central Railway Station and the Rautatientori bus station located nearby provide excellent accessibility to public transport, supplemented by the University of Helsinki metro station located below the block.
Services
The Fennia Block offers a large number of restaurant and other entertainment services. The central location of the property ensures that all commercial and business services are located within a short walking distance. There is an indoor bike storage as well as locker rooms and showers available for commuter cyclists.
Parking
Private cars have access to the Eliel parking facility, which is connected to the Central Railway Station, and the Kluuvi parking facility, which provides direct access to the University of Helsinki metro station.
Gallery
Location highlights
- Transport
- Restaurants
Contact information
-
Office premises
Janika Tikkakoski -
Retail spaces
Sirpa Vuorimaa
