Sörnäistenkatu 2 Premises: Sörnäinen, Sörnäistenkatu 2, 00580 Helsinki
A versatile and environmentally friendly office building in the heart of Sörnäinen offers a comfortable working environment, where services support the smooth running of everyday life. The building has a lobby service, a gym and newly renovated meeting rooms. In addition, the property has its own bakery and lunch café. The top floor has sauna facilities and a roof terrace, which bring additional comfort to working days. The property's own parking garage provides direct access to the office floors, making it easier to get around.
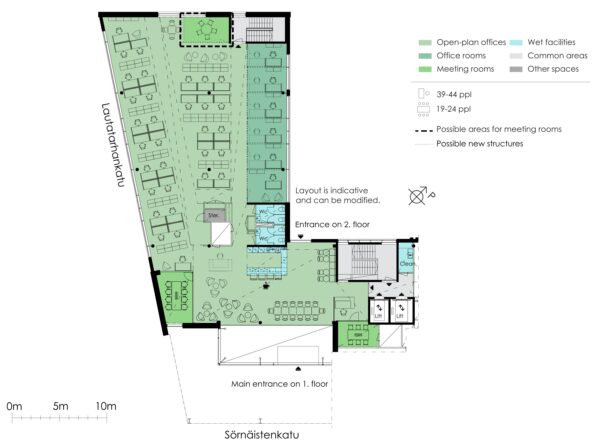
Office space options range from small 41 m² office rooms to 1,800 m² single-floor units. Larger office units can also be divided into approximately 270–570 m² pieces. It is also possible to build a light production space with a loading dock on the second floor.
The property is located along excellent transport connections, close to the Sörnäinen and Kalasatama metro stations. Hämeentie is connected to the Helsinki Metropolitan Area by buses and trams. The Teurastamo and Suvilahti event areas and the REDI shopping center are also nearby.
The property has a BREEAM In-Use Excellent environmental certificate and is powered by 100% emission-free energy, uch as wind power and renewable district heating.
Property details
Accessibility
The property has excellent transport connections. The Sörnäinen and Kalasatama metro stations are located nearby. Other transport connections from the area to different parts of the Helsinki metropolitan area are also excellent.
Services
This property has a variety of services to offer its tenants, for instance a reception, a lunch restaurant, several meeting facilities, a roof terrace, a gym, and sauna facilities. Sörnäinen offers extensive basic services within a short walking distance of the property.
Parking
The property users can enjoy an on-site parking garage, which has a direct staircase access to the office floors.
Gallery
Location highlights
- Transport
- Restaurants
Contact information
-
Anna Puhtila Manager, Value Add Portfolio
