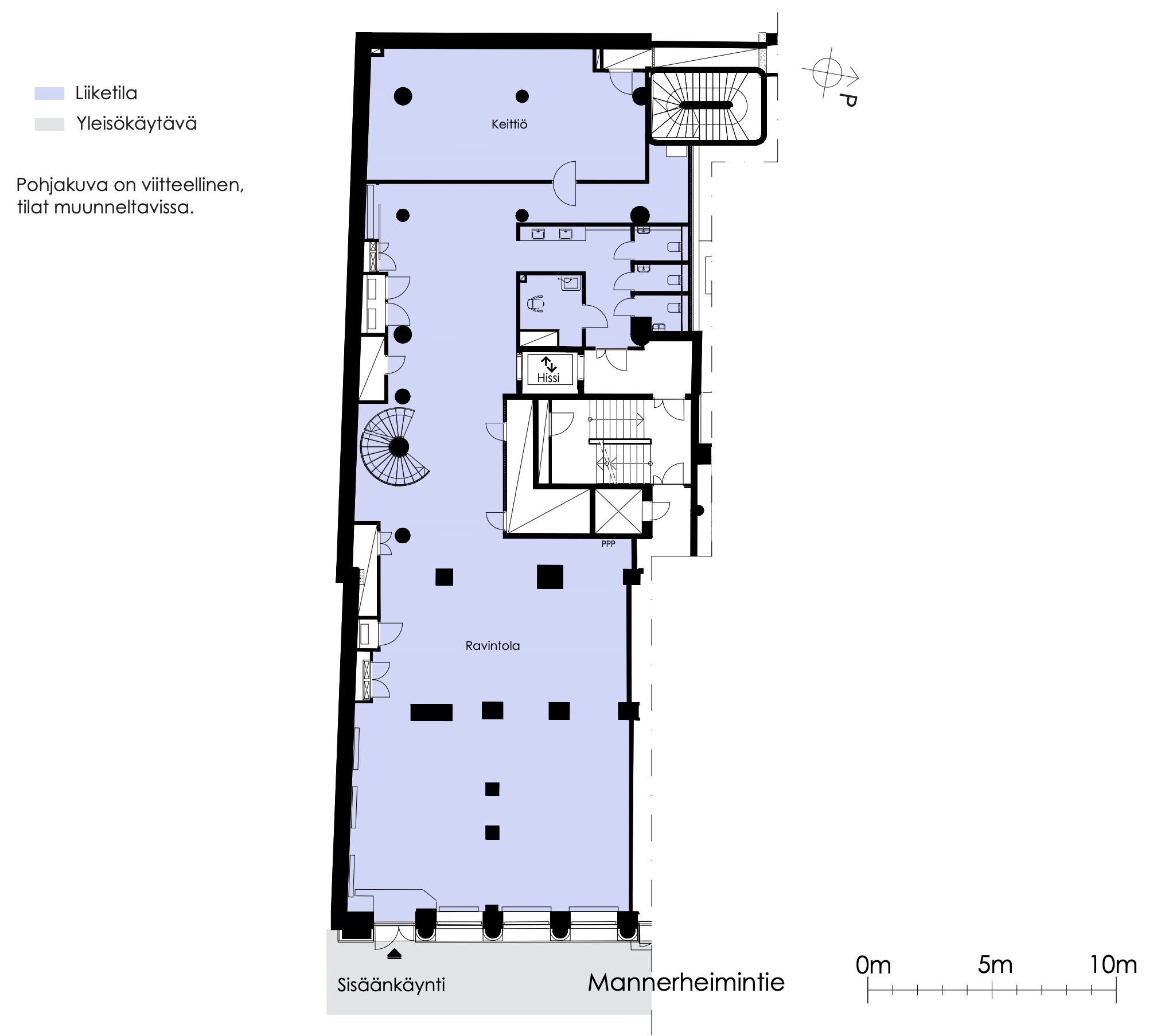
Mannerheimintie 6 Kauppapaikat
Mannerheimintie 6 Toimitila: Kamppi, Mannerheimintie 6, 00100 Helsinki
Keisari Aleksanteri II rakennutti Helsingin vilkkaimmalla liikealueella sijaitsevan, vuonna 1884 valmistuneen kivilinnan alun perin venäläiseksi poikakouluksi. Nyt historiallinen rakennus uudistuu moderniksi liike- ja toimitaloksi, joka tarjoaa yrityksille uniikit puitteet omien toimitilojen suunnitteluun. Keskeinen sijainti takaa vuokralaisyrityksille keskustan parhaimman näkyvyyden ja liikenneyhteydet. Rakennushankkeessa tavoitellaan LEED platinatason ympäristösertifikaattia ja energialuokkaa A.
Kiinteistön tiedot
Saavutettavuus
Kiinteistö sijaitsee aivan Helsingin ydinkeskustassa, Svenska Teaternia vastapäätä. Kaikki julkiset kulkuvälineet ovat lähietäisyydellä.
Palvelut
Kaikki keskustan palvelut sijaitsevat kävelyetäisyydellä.
Pysäköinti
Keskustan parkkihallit ovat helposti käytettävissä, esimerkiksi Aimo Park Iso Erottaja ja Forum-P.
Galleria
Tietoja alueesta
- Joukkoliikenne
- Ravintolat
Yhteystiedot
-
Sirpa Vuorimaa Retail leasing
